This website uses cookies so that we can provide you with the best user experience possible. Cookie information is stored in your browser and performs functions such as recognising you when you return to our website and helping our team to understand which sections of the website you find most interesting and useful.
THE OBEROI DEVELOPMENT
About the Project
40-46 Brook Street is part of the South Molton Triangle redevelopment in Mayfair.
Toureen Contractors have been appointed to deliver the enabling and structural refurbishment works to convert the building into a boutique hotel.
Works are anticipated to commence in April 2026.
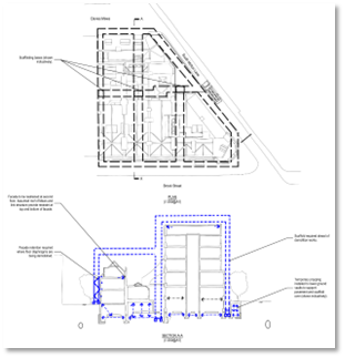
Site establishment and scaffolding
Internal strip out and temporary works
-
Site set-up and establishment
- Setting up site facilities within the existing building, including staff welfare
areas (toilets and rest space). These will be located on the Brook Street side
of the building. - Â Carrying out surveys to understand the building structure, services and
materials before works begin.
- Setting up site facilities within the existing building, including staff welfare
-
Scaffolding & Temporary works
- Installation of scaffolding around the building, including temporary roof
covering, to allow works to take place safely and protect the building from
weather. The scaffold will be fully enclosed to help contain dust and reduce
noise during the works. - Installation of temporary structural supports inside the building to safely carry out alterations and strengthening works.
- Installation of scaffolding around the building, including temporary roof
Upcoming Phases:
Indicative duration for Toureen scope of works: March 2026 – Summer 2027.
Basement underpinning
Structural alterations
Roof works
Scaffolding
-
Construction Logistics
Deliveries will be managed in accordance with our approved Construction Logistics Plan.
Key points:
- Access via Brook Street pit lane and South Molton Lane
- Traffic Marshals managing vehicle movements
- No vehicle queuing on the public highway
- Wheel cleaning and highway protection
Noise, Dust & Vibration Control
For the duration of the works Toureen will:
- Operate under Section 61 consent
- Apply Best Practicable Means (BPM)Undertake real-time 24hr monitoring
- Restrict high-impact works to core hours
- Coordinate with adjacent South Molton phases
Community Engagement
We are committed to engaging positively with our neighbours and will attend the monthly South Molton Community Liaison Meetings.
Details of next meeting can be found here on the link below.
In addition to providing updates on this webpage as the project progresses, we will keep surrounding residents and businesses informed of key milestones, project updates, and advance notice of any potentially disruptive works via newsletters.
We are committed to responding promptly to any complaints or concerns. If you have any questions or require further information, please contact the project team using the details below.
- Attend South Molton Community Liaison Meetings
- Issue newsletters at key stages
- Provide advance notice of disruptive works
- Respond to complaints within 48 hours
Contact the Team
BrookStreetInfo@toureen.co.uk
Anita Nash
Project Manager & Resident Liaison